&text4=A maximum is not in the number of comment lines. & &color4=p&
ダイニングフードのことなら、神戸市長田区の㈱浅井工業にお任せください。

株式会社 浅井工業
〒653-0022 神戸市長田区東尻池町4丁目3番9号
TEL:078-681-2930 FAX:078-652-2204
E-mail :asaikougyou@mbj.nifty.com
営業時間 | 9:00~17:00 (土日祝を除く) |
|---|
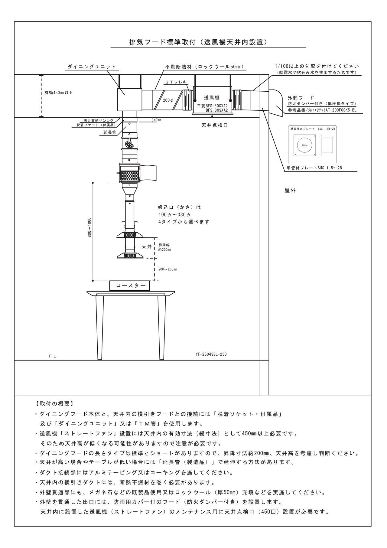
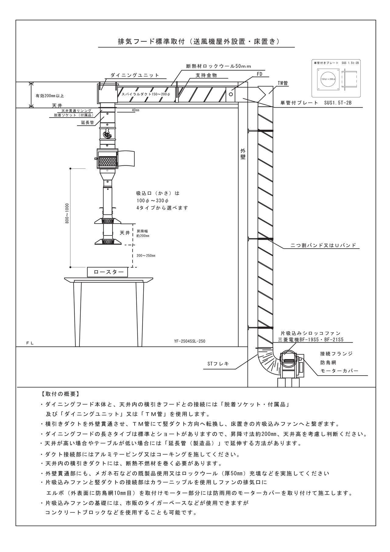
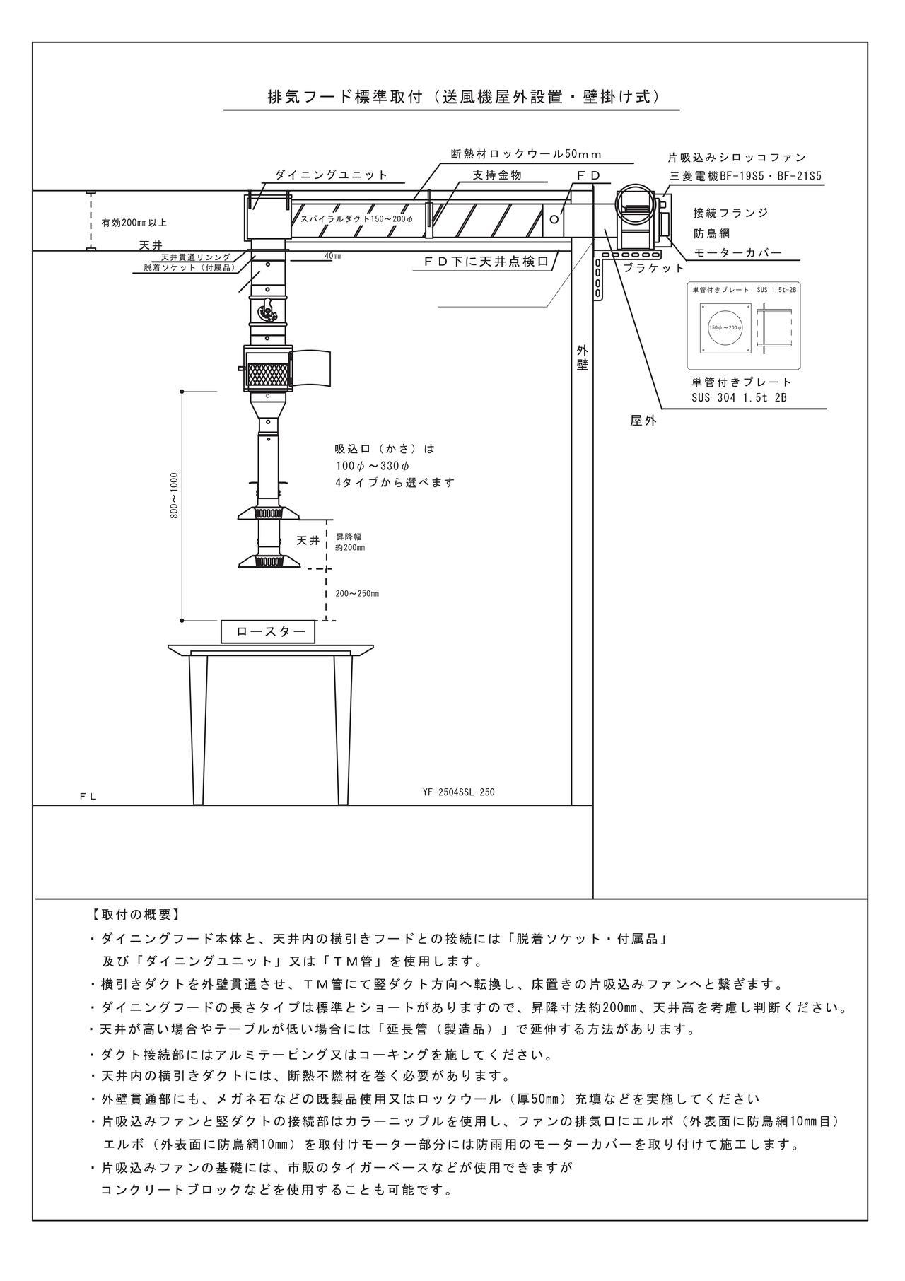
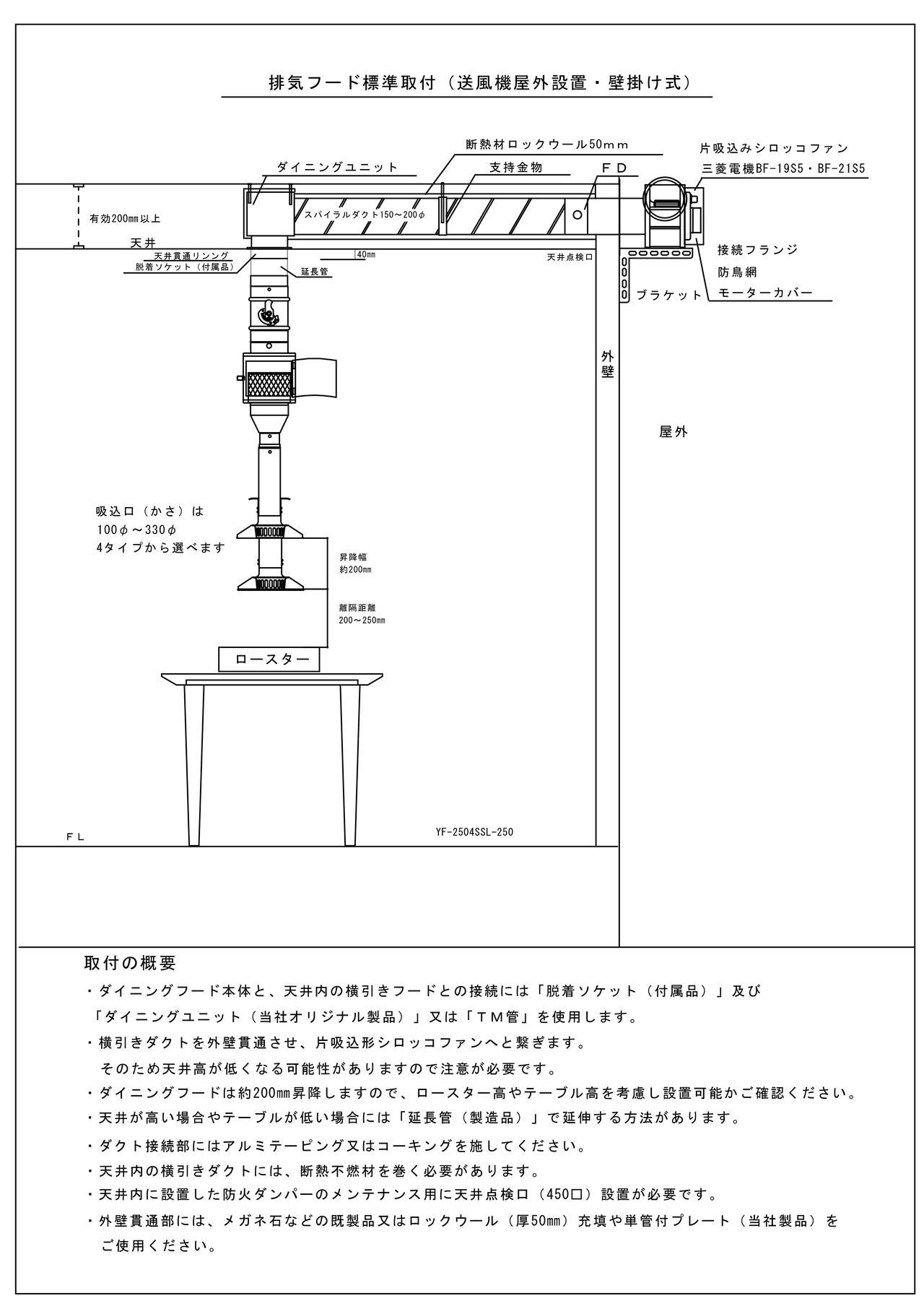
業務用をベースにさらに扱いやすさを追求したのが家庭用局所排気装置
「ダイニングフード」です。
本体は簡単に取り外し出来、お手入れしやすい構造。
ホームパーティーや家族のだんらんに最適な商品です。
※品質向上のため、予告なく仕様変更する場合がありますのでご了承ください。
〒653-0022
神戸市長田区東尻池町4-3-9
9:00~17:00
メールでのお問合せは24時間受け付けております。
土曜日・日曜日・祝日
詳しくはお電話ください。
お気軽にご相談ください。
野菜も魚もなんでこんなに旨いのか・・・
と絶賛の嵐です。
もっと早くに相談していればと
後悔しています!
排気セットが届きました。
早速取り付けてもらい、本日盛大に焼肉を致しました。
外気温度マイナス6度、車庫内の業務用暖房機をプラス28度にセットして、シャッターを閉めたままテストしてみましたところ、肉がこんなに美味しかったのか野菜も魚もなんでこんなに旨いのか・・・と絶賛の嵐です。
もっと早くに相談していればと後悔しています!
室内に煙がないからなんでしょうか。機器の安心からなのでしょうか!全員満足しております。ファンの音も排気カバーの吸込み音も気になりません。本当に相談して大正解だったと思いました。送って頂いた機材ひとつも無駄なく使用致しました。
ほんとうにありがとうございました。